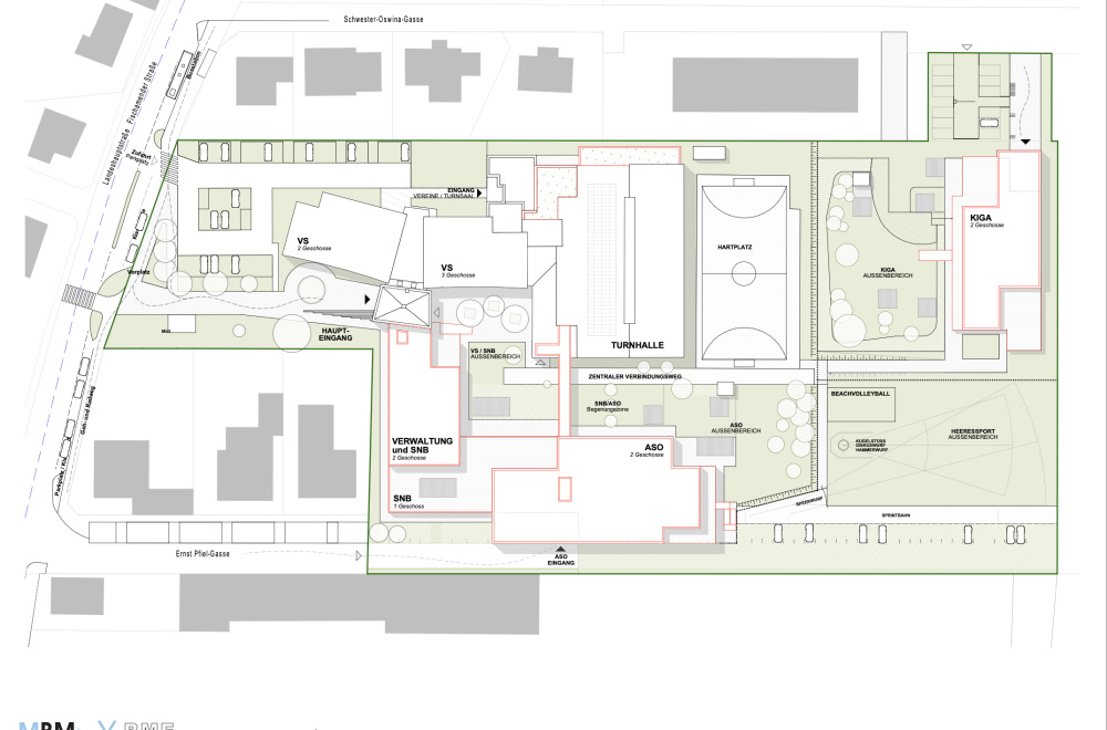
Bildungscampus Bruck an der Leitha

Schul- und Sonderbauten 

Generalplanerleistungen (ARGE MBM-BME) für "Sanierung, Adaptierung und Erweiterung der Bestandsvolksschule zum Bildungscampus"

• Errichtung eines neuen 5-gruppigen Kindergartens

• Errichtung einer neuen Allgemeinen Sonderschule

• Adaptierung und Erweiterung der Volksschule, insbesondere in Bezug auf die Schulische Nachmitagsbetreuung der Volksschule

• Adaptierung und Erweiterung der Sporthalle, insbesondere zu einer besseren Vereins- bzw. Sportveranstaltungsnutzung

• Schaffung von zusätzlichen PKW-Stellplätzen

Kosten­schätzung
Aus­schreibung
Örtliche Bauaufsicht

zurück  |  nächstes Projekt >