Volksschule Haslau Maria Ellend

Schul- und Sonderbauten 

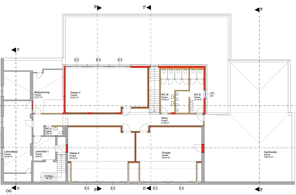
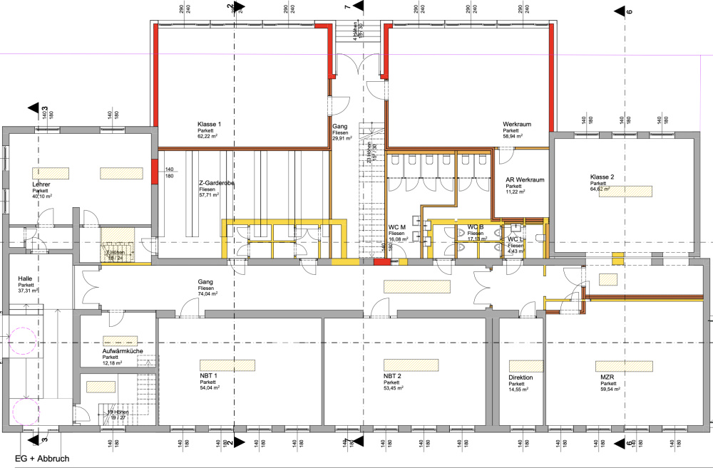
Zubau zum bestehenden Volksschulgebäude im EG und OG mit 3 Klassen, einem Gruppenraum und den zugehörigen Nebenräumen wie Zentralgarderobe, Lehrmittelzimmer und WC-Anlagen, das EG wird durch neue Rampen barrierefrei erschlossen.

Planung
Kosten­schätzung
Aus­schreibung
Örtliche Bauaufsicht

< vorheriges Projekt  |  zurück  |  nächstes Projekt >